客戶案例
金螳螂恒溫恒濕柜

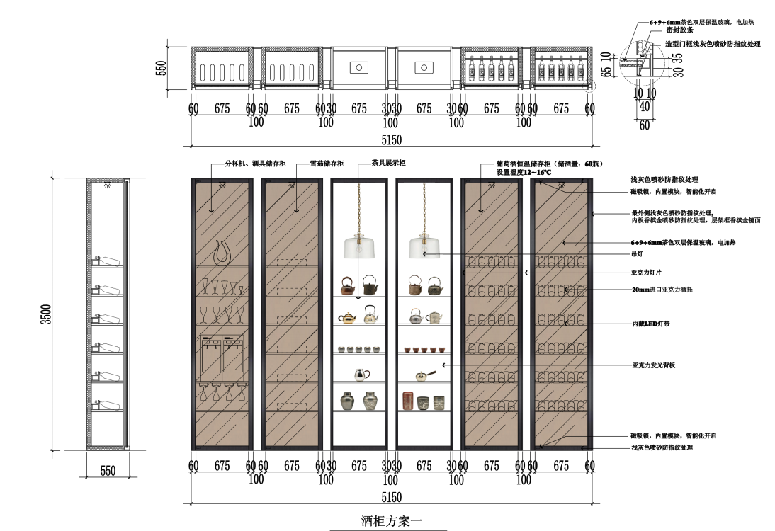
項目名稱:蘇州金螳螂商學院恒溫紅酒柜
材質:國際食品級304不銹鋼
顏色:黑鈦納米拉絲
酒柜尺寸:5500mm寬*2500mm高*450mm深
內部層架:不銹鋼鏡面方管+圓管
燈光:酒柜專用冷光源LED燈帶2700K暖黃光
酒柜門玻璃工藝:茶色雙層中空電加熱保溫玻璃(磁吸智能化開啟)
控制系統:548恒溫恒濕酒柜專用智能控制系統(法國泰康機組)
運行溫濕度:+5℃-18℃ 度:50%-70%
制作周期:30個工作日
項目名稱:蘇州金螳螂商學院恒溫紅酒柜
材質:國際食品級304不銹鋼
顏色:黑鈦納米拉絲
酒柜尺寸:5500mm寬*2500mm高*450mm深
內部層架:不銹鋼鏡面方管+圓管
燈光:酒柜專用冷光源LED燈帶2700K暖黃光
酒柜門玻璃工藝:茶色雙層中空電加熱保溫玻璃(磁吸智能化開啟)
控制系統:548恒溫恒濕酒柜專用智能控制系統(法國泰康機組)
運行溫濕度:+5℃-18℃ 度:50%-70%
制作周期:30個工作日
網站客服咨詢客服
熱線電話:
13818016323